+420 777005566
Zpět
Cena:
17 600 000 Kč
Cena poznámka:
Cena vč. provize, právního servisu a DPH.
Typ zakázky:
Prodej
Lokalita:
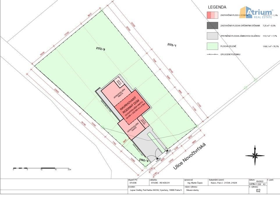
Kácov
Dispozice:
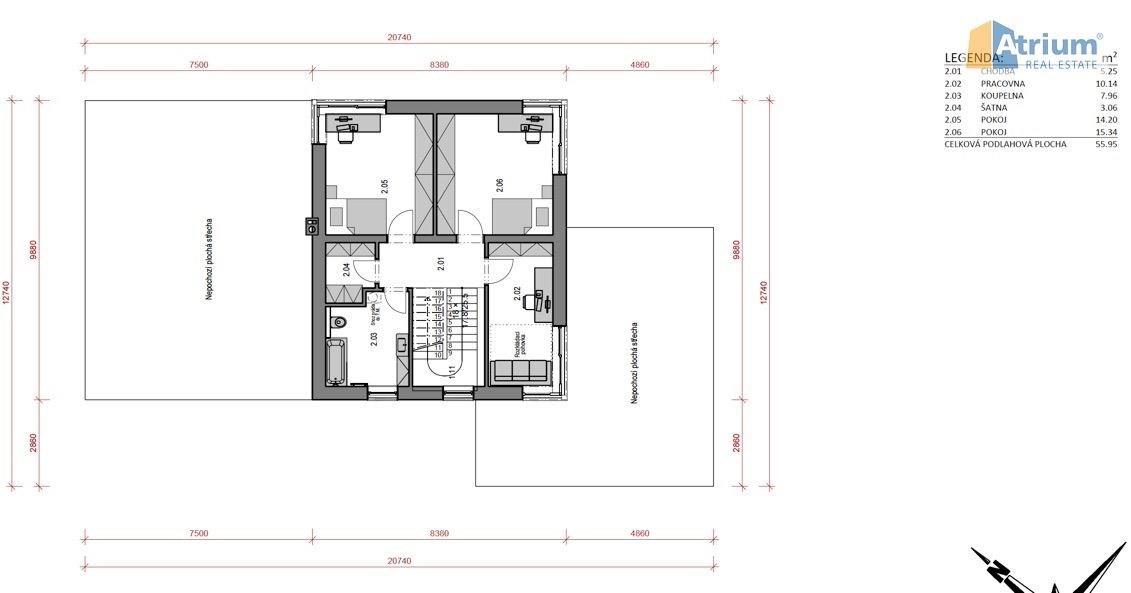
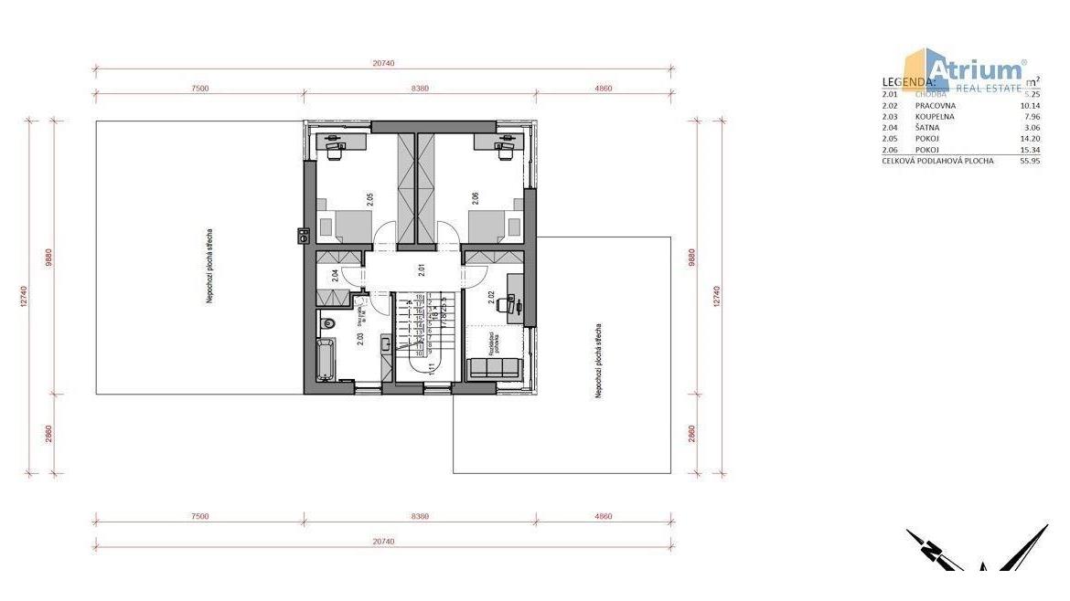
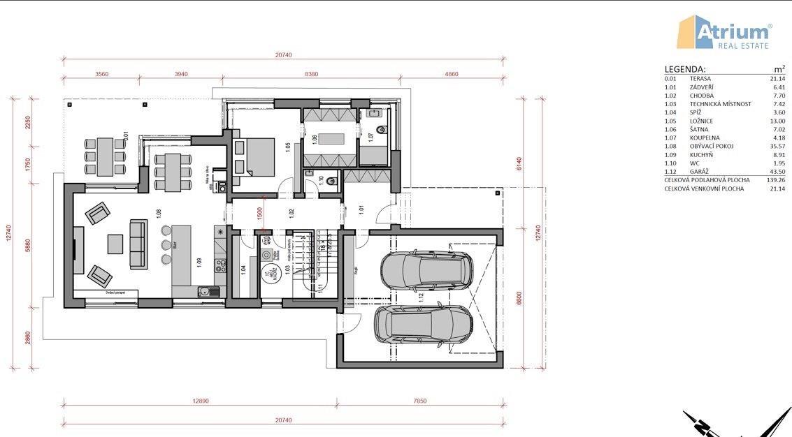
5+kk
Plocha:
194 m2
Evidenční číslo:
977142

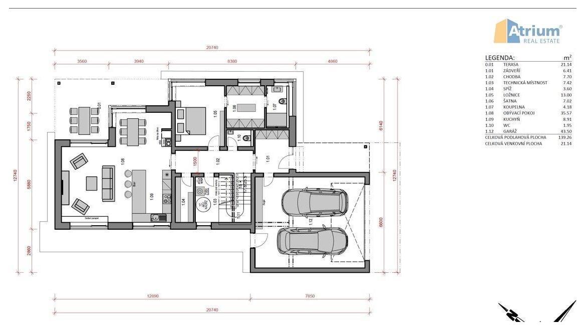
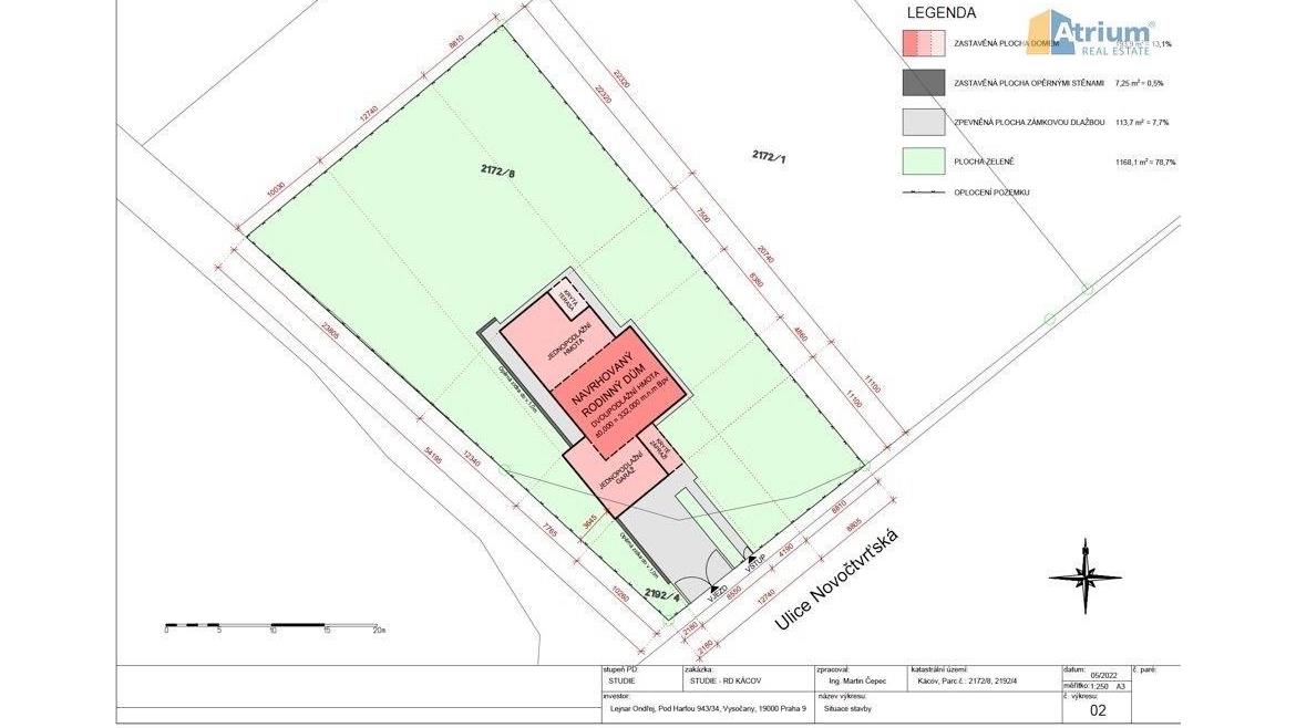
Luxusní novostavba RD 5+kk (194 m2) s terasou a prostornou garáží v malebném Kácově ulice Novočtvrťská, na parcele o velikosti 1483 m², klid, zeleň, hypo možná

Aleš Kratochvíl

Mobil:+420 777 005 566

Pokud hledáte ideální místo pro život se svou rodinou nebo místo, kde můžete v naprostém klidu relaxovat a načerpat novou energii, měli byste zvážit tuto nově postavenou nemovitost v Kácově, v krásné oblasti Středočeského kraje. Dům se nachází v malebné lokalitě Novočtvrťská a je skvělou volbou pro ty, kteří hledají moderní bydlení v souladu s přírodou. Luxusní dům, který byl postaven v roce 2025, nabízí celkovou užitnou plochu 194 m², zahrnující v přízemí prostorný obývací pokoj spojený s kuchyní /zn. SYKORA, deska je z tvrzeného kamene Technistone, dále zde naleznete rodičovské apartmá /ložnice+šatna+koupelna s WC, dále úložné prostory a technické zázemí domu. V prvním patře jsou umístěny 2 ložnice s dostatkem prostoru pro děti, pracovna, společná šatna a samozřejmě koupelna s WC. Dvě patra domu poskytují dostatek soukromí pro každého člena rodiny. Obrovskou výhodou tohoto RD je krásná terasa s výhledem do okolí, kde budete mít možnost trávit pohodové chvilky s rodinou či přáteli třeba u grilovačky. Nesmíme ale zapomenout ještě na velkoryse navrženou garáž, která pojme pohodlně 2 auta a ještě zbyde dostatek místa pro uskladnění věcí či prostor pro kutila. Dům nenabízí balkon či výtah, ale jistě oceníte zahradu o využitelné rozloze více jak 1300 m², která je skvělým prostorem pro různé venkovní aktivity, hraní s dětmi nebo zahradničení. Dům je situován v klidném a bezpečném prostředí, obklopeném loukami, zahradami a lesy, což přináší nejen krásu přírody, ale i příjemné soukromí, ale hlavně absolutní klid. Lokalita Kácova je dostupná jak městskou, tak příměstskou hromadnou dopravou a nabízí také vynikající spojení s hlavními silnicemi a dálnicemi, což usnadňuje cestování do práce či za kulturou. Od domu jste na D1 směr Praha či Brno do 5 minut ( 6 km ) pohodové jízdy. U této luxusní nemovitosti se o teplou vodu a topení v podlahách stará výkonné tepelné čerpadlo zn. PANASONIC o výkomnu 9kWh, což Vám zaručí pohodlí a ekonomičnost provozu domu. Stavba je postavena z kvalitních cihel Porotherm a díky své západovýchodní orientaci poskytuje dostatek světla po celý den. Tento dům je jedinečným spojením moderního životního stylu, komfortu a krásné přírody. Je to místo, kde můžete začít novou kapitolu svého života s pozitivní energií a ve zdravém prostředí. Dům je k okamžitému nastěhování, čeká jen na to, aby si jej jeho noví majitelé zamilovali a vdechli mu život svými osobními doteky. A pokud jste milovníky golfu, tak jste do 5ti minut na 18ti jamkovém hřišti. Poslední, ale důležitou informací je, že se vlastník rozhodl nedokončovat finální fasádu a exrteriéry. Chce umožnit budoucím vlastníkům, aby se sami rozhodli, jaký odstín fasády bude jejich nový dům mít a jak bude vypadat zahrada. Tuto skutečnost zohledňuje majitel tím, že sousedící pozemek č. 2173/6, kde vlastní podíl ve výši 424/1379, bude součástí kupní ceny jako bonus.

Typ nemovitosti:
Dům
Podtyp nemovitosti:
Samostatný
Dispozice:
5+kk
Užitná plocha:
194 m2
Plocha parcely:
1483 m2
Zastavěná plocha:
140 m2
Konstrukce budovy:
Cihla
Typ vlastnictví:
Osobní
Stav nemovitosti:
Novostavba
Energetická náročnost budovy:
B - Velmi úsporná
Parkování:
U domu (veřejné), Venkovní stání, Garáž
Výtah:
Ne
Terasa:
Ano
Balkón:
Ne
Lodžie:
Ne
Zahrada:
Ano
Sklep:
Ne
Možno hypotéka:
Ano
Elektřina:
230 V
Plyn:
Není
Kanalizace:
Městská
Voda:
Vodovod
Rok výstavby:
2024

Máte zájem?

Před odesláním formuláře se seznamte, jak pracujeme s Vašimi osobními údaji